4
4
583 m²
3
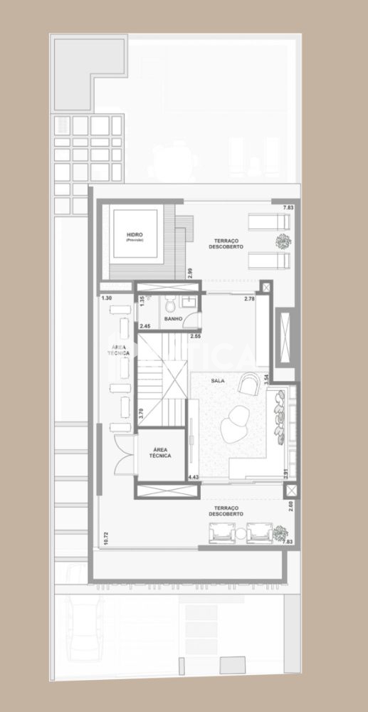
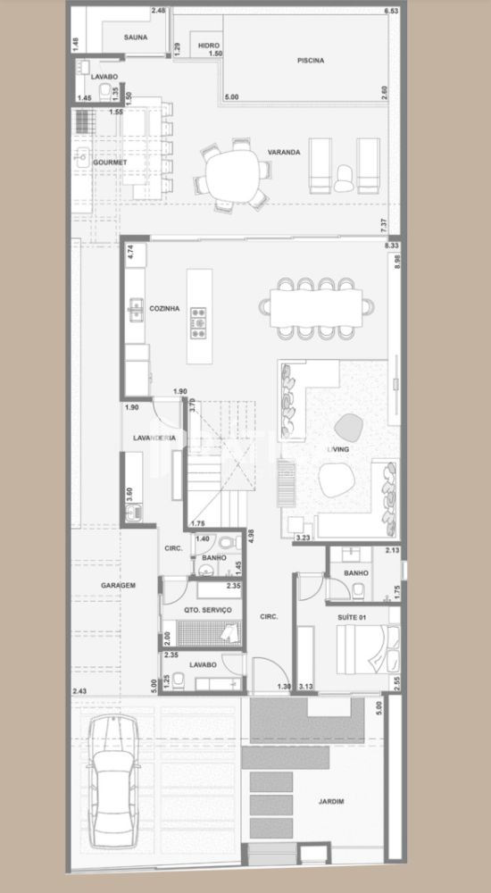
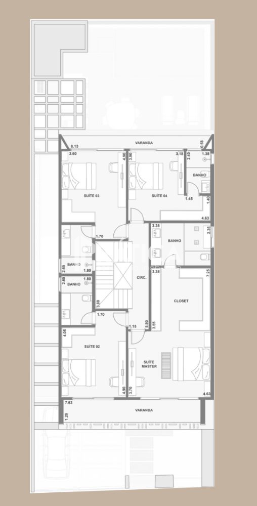
CASA À VENDA NO CONDOMÍNIO ALAMEDA DOS EUCALÍPTOS - Casa em fase construção com previsão de entrega para dezembro de 2026, triplex com 583m² de área construída em terreno de 306m². 1º PAVIMENTO: Sala em vários ambientes , sala de jantar, lavabo, 1 suíte térrea, cozinha, área de serviço, lavanderia. 2º PAVIMENTO: 4 suítes sendo a suite master com closet e salão de banho com hidro. ÁREA DE LAZER: Piscina, sauna e espaço gourmet com churrasqueira, além de banheiro de apoio. Nossa empresa é especializada no alto luxo da Barra da Tijuca e do Recreio dos Bandeirantes, temos outras opções nos condomínios: Porto dos Cabritos, Santa Helena, Santa Lucia, Arouca, Del Lago, Quintas do Rio, Santa Mônica Jardins, Riserva Uno, Riserva Golf, Pedra de Itaúna, Alphaville, Crystal Lake, Villagio Felicitá, Lafayette de Andrada, Pedra de Itaúna, Mansões, Malibu, Mandala, Blue Houses, Rio Mar, Novo Leblon, Park Palace, Wimbledon Park, Jardim Ibiza, Lagoa Mar, Arouca, Itanhangá, Porto dos Cabritos, Alameda dos Eucaliptos, Jardim Oceânico, Jardim Marapendi, Santa Lúcia, Santa Helena, Santa Marina, Sernambetiba, Nova Ipanema, Village Marapendi, Vivendas do Bosque, Jardim Barra da Tijuca, Interlagos de Itaúna e Interlagos Quality.
